



![Layout Options 3x3x3 [Sheet Title]](https://www.klassnik.com/wp-content/uploads/Layout3x3x3-2-.jpg)




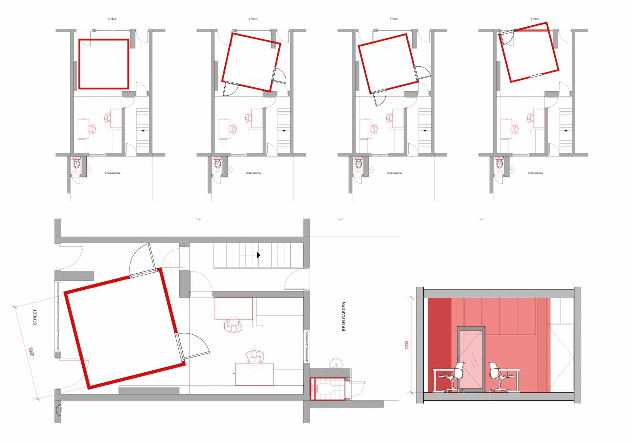
Matt’s Gallery’s new space at Ron Henocq Fine Art in Bermondsey. The 3x3x3 metre cubic exhibition space and office areas occupy the ground floor of a domestic terraced house – a shift away from the warehouse spaces the gallery has previously worked within.
The gallery cube is installed at an angle to the existing interior to create a clear juxtaposition between the new space and the old features of the original room. A layer of existing plywood floor finish was precisely cut away to enable a level threshold between the inlaid grey micro-cement square and surrounding floor surface; a familiar fragment of the gallery’s previous qualities embedded into the new site. The entrance into the exhibition space is created by cutting away the corner of the cube, maximising the useful display area of the 4 internal walls and providing a narrow access through to the adjacent gallery areas.
The structure was built using 4×2″ timber and shuttering ply set out in relation to a standard sheet size with additional ornamental noggins inserted to maintain elevational symmetry across the exposed structure. Junctions between walls were formed using continuous lengths of 2×2″ timber section, creating a stepped corner profile reminiscent of Mies van der Rohe’s range of classic corner solutions.
A small bookshop area, with untreated mdf shelving and cupboard storage inset into a maroon wall, colour matched to the external elevation of the building, separates the gallery space from the office facilities which are concealed behind a folding white melamine faced plywood screen.
Matt’s Gallery has presented a rapid succession of short exhibitions and events including the following:
David Austen
Elizabeth Magill
Mandy Ure
Angus Braithwaite
Jo Bruton
Alison Turnbull
Beth Collar
Ben Rivers
Roy Voss
Rasheed Araeen
Nicola Bealing
Joey Holder
Bronwen Buckeridge
Juan Cruz
Benedict Drew
Borbala Szanto
Rebecca Lennon
Jo Stockham
Naomi Pearce
Amikam Toren
John Walter
House Taken Over
Oona Grimes
Nathaniel Mellors & Erkka Nissinen
Matthew Krishanu
Brian Catling
Ron Henocq
Dean Kenning
The Klassnik Corporation frequently work as architects and designers for cultural institutions and on exhibition design in collaboration with artists. Visit our Art / Culture and Exhibitions portfolio for more examples.
2018